Technical

Clear
52 files found

000

Table of contents for general overview section covering vehicle exterior appearance, model type variations, and key differences compared to Japanese…
768 KB Manuals/Japanese/VOL6 Years 80-84/030_I_E-SX60_1982_8

000

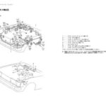
General overview section showing exterior views of the Toyota E-SX60 XEMRS model from front and rear angles with model identification…
259.8 KB Manuals/Japanese/VOL6 Years 80-84/031_I_E-SX60_1983_2

000

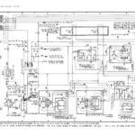
Wiring diagram reading guide explaining how to interpret vehicle wiring diagrams including functional component index, relay and computer mounting positions,…
386.4 KB Manuals/Japanese/VOL6 Years 80-84/119_W_E‐SX60_1982_8

000

Wiring diagram reading guide explaining how to interpret vehicle electrical schematics including component symbols, relay and computer mounting positions, wire…
197.5 KB Manuals/Japanese/VOL6 Years 80-84/120_W_E‐SX60‐XEMRS_1983_2

001

Table of contents page showing development aims section covering new engine introduction for improved power and fuel economy, first-class high-quality…
307.7 KB Manuals/Japanese/VOL6 Years 80-84/030_I_E-SX60_1982_8

001

Table of contents for major component characteristics and modification points covering the 2Y-PU engine, drivetrain, suspension, steering, brakes, body, and…
2 MB Manuals/Japanese/VOL6 Years 80-84/031_I_E-SX60_1983_2

001

Electrical wiring diagram showing ignition system, fuel injection components, ECU connections, fuse/relay locations, and grounding points for Corona Mark II,…
1.2 MB Manuals/Japanese/VOL6 Years 80-84/119_W_E‐SX60_1982_8

001

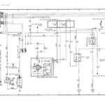
Electrical wiring diagram for Toyota vehicle charging system showing ignition switch connections, alternator wiring, battery circuits, warning lamp control, and…
277.7 KB Manuals/Japanese/VOL6 Years 80-84/120_W_E‐SX60‐XEMRS_1983_2

002

Table of contents for Chapter 3 covering new major equipment features including engines (1S-U, 1G-E, 1G-GEU, 2L-TE), chassis components (clutch,…
4.2 MB Manuals/Japanese/VOL6 Years 80-84/030_I_E-SX60_1982_8

002

Appendix materials section header page containing supplementary technical information and reference materials for the Toyota E-SX60 XEMRS model workshop manual.
148.5 KB Manuals/Japanese/VOL6 Years 80-84/031_I_E-SX60_1983_2

002

Wire harness routing diagrams showing the placement and connection points of electrical wiring harnesses for different engine variants (L, 2L-TE,…
224.8 KB Manuals/Japanese/VOL6 Years 80-84/119_W_E‐SX60_1982_8

002

Wire harness routing diagram for 2Y-PU engine showing the location and connections of various engine wiring harnesses including engine room…
43.9 KB Manuals/Japanese/VOL6 Years 80-84/120_W_E‐SX60‐XEMRS_1983_2

003

Table of contents for Chapter 4 covering new mechanisms and systems structure/operation including 1S-U engine systems, 1G-EU/1G-GEU engines with TCCS…
3.8 MB Manuals/Japanese/VOL6 Years 80-84/030_I_E-SX60_1982_8

003

Wire harness connection compatibility chart for Corona Mark II showing which specific wire harnesses and connectors are used across different…
207.7 KB Manuals/Japanese/VOL6 Years 80-84/119_W_E‐SX60_1982_8

003

Wire harness connection application table showing specific wire routing and connection points for various Toyota Corona Mark II and Chaser…
30.2 KB Manuals/Japanese/VOL6 Years 80-84/120_W_E‐SX60‐XEMRS_1983_2

004

Table of contents page showing section 5 which covers the main component parts list (主要構成部品一覧表) for the Toyota SX60 vehicle.
1.2 MB Manuals/Japanese/VOL6 Years 80-84/030_I_E-SX60_1982_8

004

Wiring harness diagram for engine room main wiring including wire specifications, connector details, and circuit routing for L and 2L-TE…
626.7 KB Manuals/Japanese/VOL6 Years 80-84/119_W_E‐SX60_1982_8

004

Wiring diagram table for 2Y-PUKLPG engine room main harness showing wire specifications including gauge, color codes, connections, and routing for…
107.5 KB Manuals/Japanese/VOL6 Years 80-84/120_W_E‐SX60‐XEMRS_1983_2

005

Table of contents section showing the sixth chapter titled 'Main Components Table' which likely contains specifications and details of principal…
492.7 KB Manuals/Japanese/VOL6 Years 80-84/030_I_E-SX60_1982_8

005

Wire and cowl wiring diagram specification table showing wire gauges, colors, connector assignments, and circuit routing for taxi, semi-concealed, door…
4.5 MB Manuals/Japanese/VOL6 Years 80-84/119_W_E‐SX60_1982_8

005

Wiring diagram specifications for the 2Y-PUKLPG vehicle showing wire harness connections, wire colors, gauge sizes, component locations, and relay block…
398.2 KB Manuals/Japanese/VOL6 Years 80-84/120_W_E‐SX60‐XEMRS_1983_2

006

Table of contents for Toyota workshop manual covering general vehicle information, exterior overview, model variations, frame numbers, and major component…
135.6 KB Manuals/Japanese/VOL6 Years 80-84/030_I_E-SX60_1982_8

006

Wiring diagram for instrument panel connections in sedan models with digital meters, showing transmission control switches, defogger switches, and resistor…
252.2 KB Manuals/Japanese/VOL6 Years 80-84/119_W_E‐SX60_1982_8

006

Wiring diagram specification table for 2Y-PUKLPG engine showing wire gauge, color codes, connection points, and component destinations including lamps, sensors,…
83 KB Manuals/Japanese/VOL6 Years 80-84/120_W_E‐SX60‐XEMRS_1983_2
1 2 3

aaaaaaaaaaaaaaaaaaaaaaaa